Mornington Avenue, Bromley
Property Features
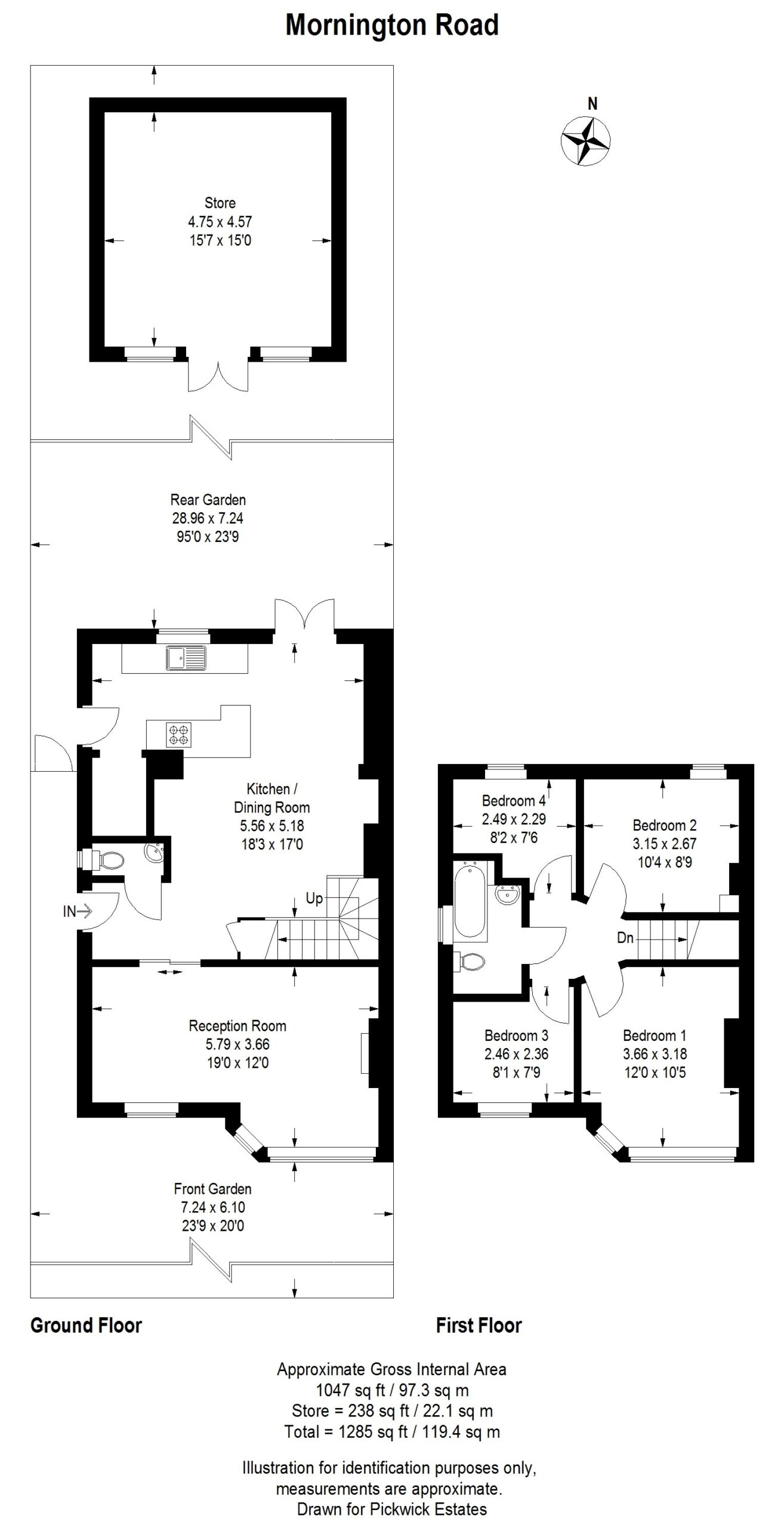
- semi detached family home
- four bedrooms
- spacious and very well presented
- spacious reception
- open plan dining/kitchen
- off road parking for several cars
- situated in a tranquil cul-de-sac in Bromley South
- large rear garden
- downstairs W/C
- market chain-free
Property Summary
**Charming Family Home in Bromley South**
Perfectly situated in a tranquil cul-de-sac in Bromley South. This property combines classic charm with modern living, making it the ideal family home.
As you enter, you are greeted by a spacious living room located at the front of the house, providing a cozy space for relaxation and entertaining. The heart of the home features an open plan kitchen that comes fully fitted with all essential appliances, designed for both functionality and style. A convenient downstairs toilet adds to the practicality of this well-designed layout.
Upstairs, you will find four generously sized bedrooms, including two spacious doubles, perfect for accommodating family and guests. The family bathroom caters to all needs.
One of the standout features of this property is the large rear garden, a true oasis for outdoor enjoyment. At the back, you'll find a charming summer house, for a home office/ home gym. Additionally, there is significant potential for a rear extension, allowing you to customize and expand your living space.
Off-street parking for two cars adds to the convenience of this home, making it easy for families with multiple vehicles. The property is double glazed throughout and benefits from gas central heating, ensuring comfort year-round.
Located in a quiet residential area, this home offers the perfect balance of peace and accessibility, with excellent transport links for a quick commute into the city. Offered to the market chain-free, this property is ready for you to make it your own. Don’t miss the opportunity to view this exceptional family home!






















