Brockley Road, London
Property Features
- Terraced house
- three bedroom family home
- lounge
- dining room
- Crofton Park SE4
- house requires some work
- no forward chain
Property Summary
A charming three bedroom house bursting with potential and waiting to be transformed into your dream home. This property offers a unique opportunity for buyers seeking to put their personal touch on a residence in a sought-after neighbourhood. Discover the hidden gem of Crofton Park SE4, this house enjoys easy access to local amenities, parks, schools, and transportation options With three well-proportioned bedrooms, a generous living area, and ample potential for expansion, this house provides a canvas for creating a comfortable and functional living space. While the house requires some work, its solid structure and layout offer endless possibilities for renovation and customization.
The property boasts a private garden space, perfect for outdoor gatherings, gardening, and relaxation. Crofton Park is a residential area located in the London Borough of Lewisham , It's known for its green spaces, community feel, and Victorian-style housing. The area is served by Crofton Park railway station, providing connections to central London. Whether you're a seasoned renovator or someone looking to craft a home that perfectly aligns with your style, this 3-bedroom house in Crofton Park SE4 offers an exciting project in a desirable location. Don't miss out on the chance to transform this diamond in the rough into a true masterpiece. Contact us today to schedule a viewing and explore the potential that this property holds.
Full Details
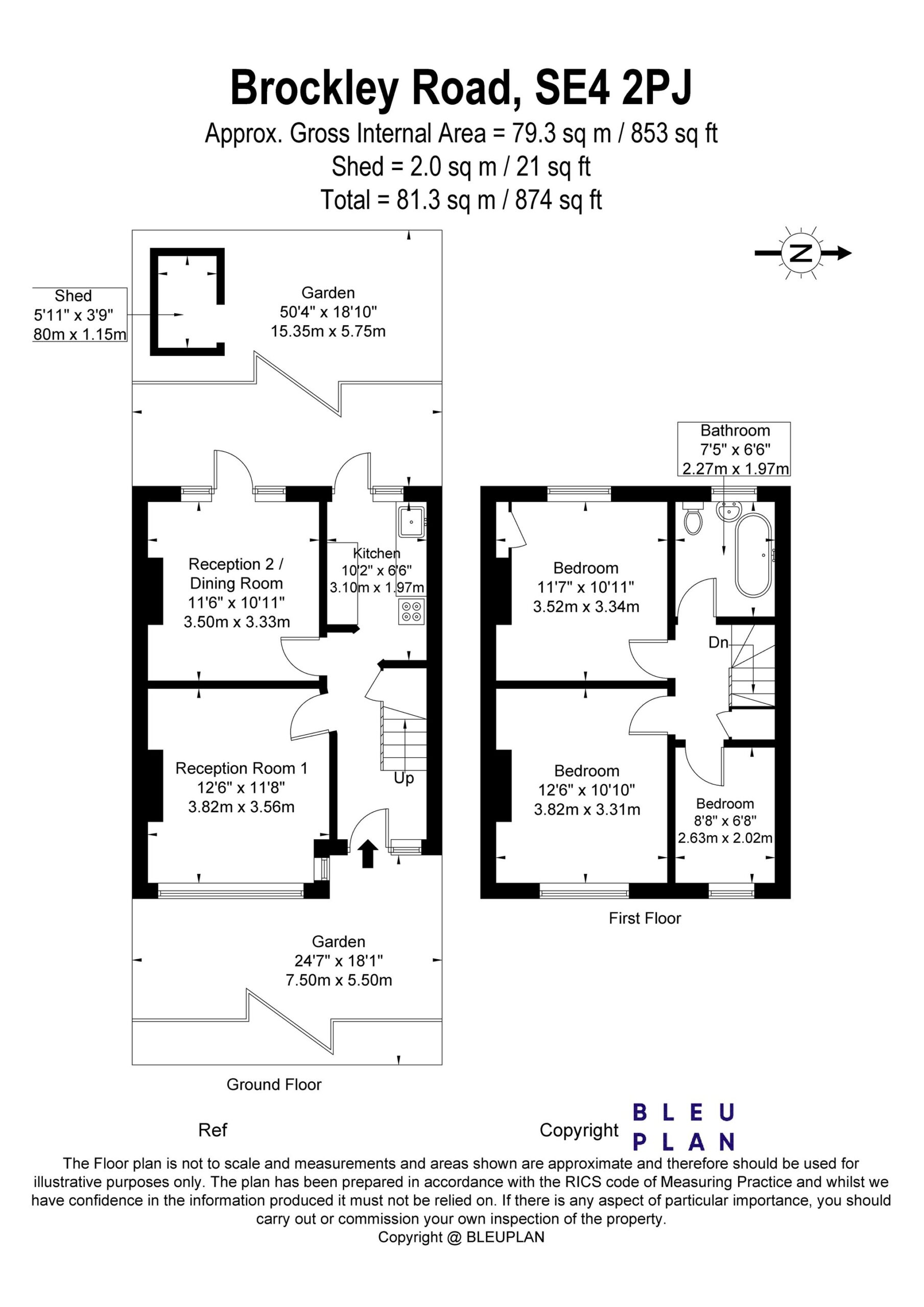
Ground floor
Lounge
12'6 x 11'8 (3.82 x 3.56m)
Dining room
11'6 X 10'11 (3.50 X 3.33m)
Kitchen
10'2 x 6'6 (3.10 x 1.97m)
Bathroom
First Floor
Bedroom 1
12'6 x 10'10 (3.82 x 3.31m)
Bedroom 2
11'7 x 10'11 (3.52 x 3.34m)
Bedroom 3
8'8 x 6'8 (2.63 x 2.02m)
Rear Garden
50'4 x 18'10 (15.35 x 5.75m)






























