Riefield Road, London
Property Features
- stunning brand new
- three bedroom
- detached family home
- A spacious lounge with direct access to the newly landscaped garden
- kitchen diner
- an Air Source Heat Pump System by Stiebel
- a 9 Kw EV Car charging point
- German Kitchen by Nobilia, luxury bathroom with Grohe furnishings
- Underfloor heating to the ground floor,
Property Summary
An excellent opportunity to purchase this stunning brand new, three bedroom detached family home. Entering into a beautiful large welcoming hallway with heated flooring you'll find the doorways to the principle rooms. A spacious lounge with direct access to the newly landscaped garden with patio, kitchen diner and a downstairs W/C. On the first floor you will find the master bedroom with en-suite, two double bedrooms and a luxury family bathroom. Further benefits include: an Air Source Heat Pump System by Stiebel and a 9 Kw EV Car charging point. Fittings include: German Kitchen by Nobilia, luxury bathroom with Grohe furnishings, Minoli Italian Tiling and timber frame double glazing by Bereco. Underfloor heating to the ground floor, house alarm, 10 year New Build Warranty with Build-Zone & off street parking.
Location: The property is situated within a short distance to two stations. Falconwood Station is 0.6 miles away with great links into the city. The A2 & A20 are both also within reasonable distance providing access to and from London. There are also great primary and secondary schools located close to the property.
Service Charge - £500 P/A
Energy Efficiency Rating - B
Full Details
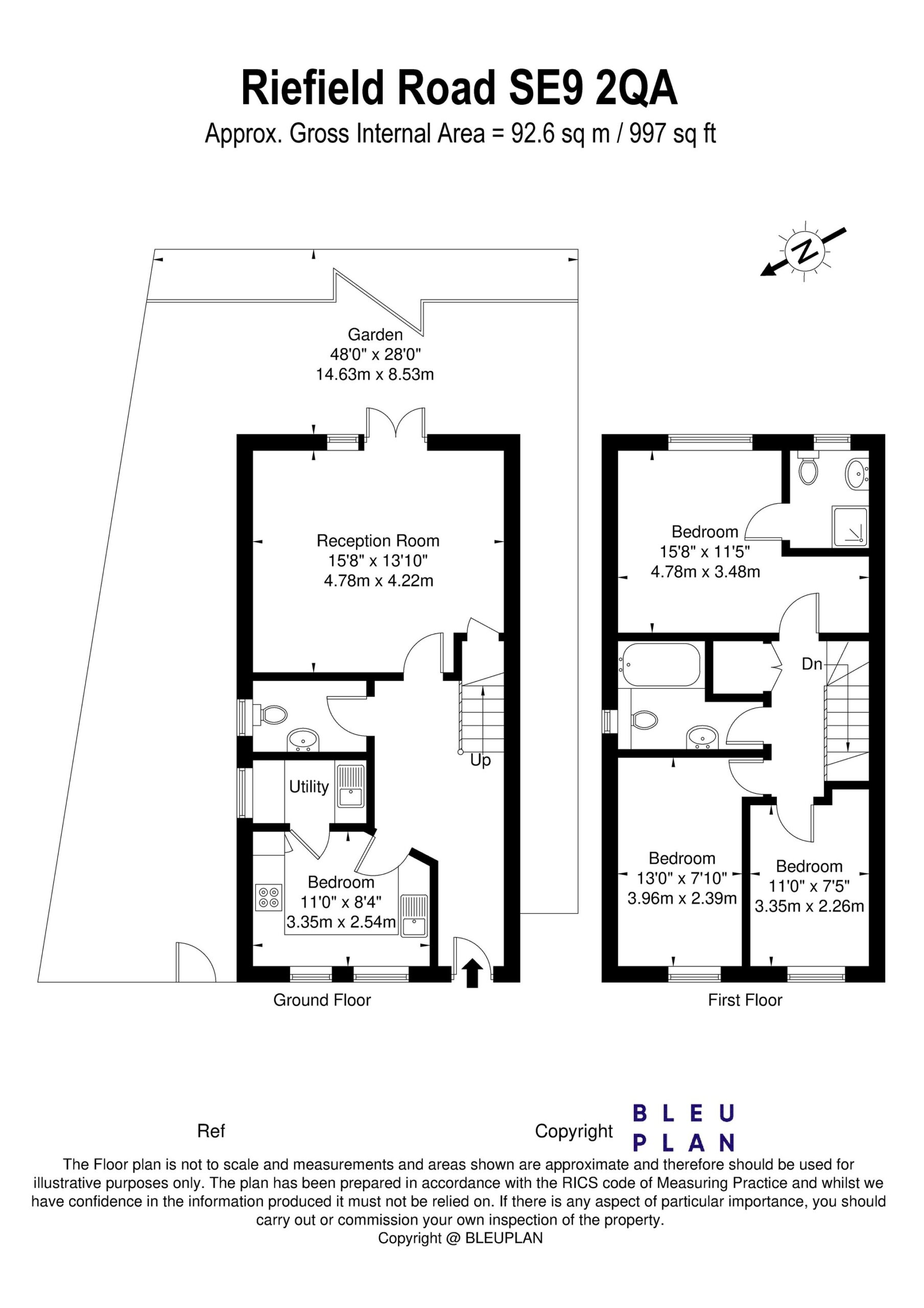
Ground Floor
Reception room
15'8 x 13'10 (4.78 x 4.22m)
Kitchen
11'0 x 8'4 (3.35 x 2.54m)
Utility room
W.C
First floor
Master bedroom en-suite
15'8 x 11'5 (4.78 x 3.48m)
Bedroom 2
13'0 x 7'10 (3.96 x 2.39m)
Bedroom 3
11'0 x 7'5 (3.35 x 2.26m)
Family bathroom
External
Rear Garden
48'0 x 28'0 (14.63 x 8.53m)




























